
XPS挤塑板材生产线:
XPS发泡板材生产线使用的主要原料是全新或回收的聚苯乙烯(PS)颗粒,通常需要加酚醛板生产线入色母粒或阻燃剂等添加剂,把混配后的原料喂到一阶挤出机组进行熔融塑化并搅拌,持续注入发泡剂(如氟里昂、丁烷和二氧化碳CO2等)并快速混炼加压,然后挤出通过液压换网器,把流体聚合物中的杂质过滤出来,接着混合物被推送到二阶挤出机组,进一步地充分混合并降温,在此阶段对聚合物的温度和压力进行准确控制,而后被挤出有特定流保温板与挤塑板道的模具,此时混在聚合物中保持高压的发泡剂在瞬间压力释放,发泡剂气化形成很多各自独立的微小气泡,被包裹在聚苯乙烯膜泡内,经冷却定型形成截面均匀、闭孔蜂窝状的板材,接着是整平机阻燃挤塑板批发厂家组和牵引输送辊道,然后经过切割系统得到预定尺寸的XPS挤塑板,较后是堆垛和包装入库。边角废料通过回收造粒机得到循环利用。一般情况下,XPS挤塑板板材还要经过开槽、表面打毛或铣边成型等处理以满足不同的应用。



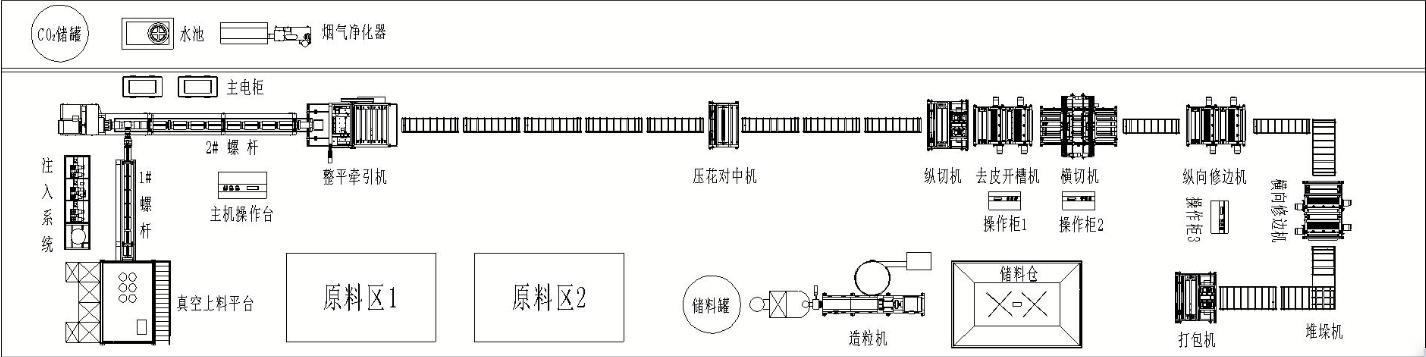
平面布置图:

各种保温材料特性比较对照:
|
|
|
|
|
|
|
|
|
|
|
|
|
|
|
|
|
|
|
|
|
|
|
|
|
|
|
|
|
|
XPS CO2发泡板性能
◆ 表面平整均匀,完全闭孔式的内部蜂窝结构
◆ 保温、隔热(导热系数10℃:≤0.028w/Mk)、隔音、防潮性能优越
◆ 高抗压(压强:≥250kpa)、轻质(密度可达:28kg/M3)
◆ 不吸水(吸水:≤ 1.0%)、不透气、耐磨、不降解
广泛应用于以下领域,是目前市场公认的环保型绝热保温材料。
◆ 用于住宅楼,写字楼,工业厂房等建筑业墙体及屋面防水、保温、隔热;
◆ 用于钢结构厂房,铁皮房屋与彩色波浪瓦的隔热、保温;
◆ 用于冷冻库的隔热板,保冷、防水;
◆ 用于地暖工程中地板下面,防潮、隔热、隔音;
◆ 用于中央空调通风管道,隔热、保温;
◆ 用于水利工程中混凝土输水渠道的防冻胀材料(如南水北调工程);
◆ 用于公路、铁路、机场、广场等路基工程的防冻保温。

